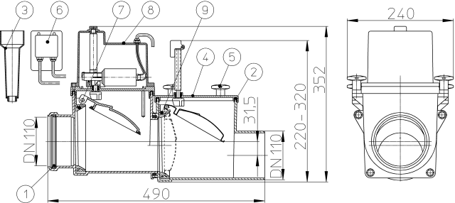
Механический магистральный канализационный затвор DN110 с электроприводной заслонкой, ручным затвором и прочисткой. Показ работоспособности, показ и звуковой сигнал на электронном модуле управления при повреждении. С возможностью поключения к компьютеру.