Новоселки,
ул. Озерная, 20
(044) 221-61-96 
(066) 404-93-53 
(067) 329-17-27

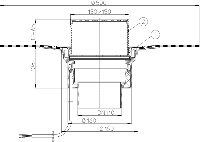
Кровельная воронка HL62.1BH



      Воронка для плоских кровель вертикальный выпуск с электроподогревом от сети напряжением 230В, мощностью 10-30Вт, с приваренным битумным полотном d 500мм, в качестве идеального соединения к битумным кровельным уплотнениям, со снимаемыми насадными подрамниками 19 - 65 мм / 148 х 148 мм и решеткой из нержавеющей стали 137 х 137 мм. Строительная защита во время монтажа в комплекте.



Назад в раздел

Заказ товара

Ваше имя*
Ваш E-mail
Телефон*
Сообщение
Защита от автоматических сообщений
CAPTCHA
Введите слово на картинке*

© 2013 Сайт компании

Новоселки,
ул. Озерная, 20

Электронная почта: mail@tehpuls.com.ua
Телефон:
(044) 221-61-96 
(066) 404-93-53 
(067) 329-17-27

Внедрение


Яндекс.Метрика
VSRT3S1_VILKA